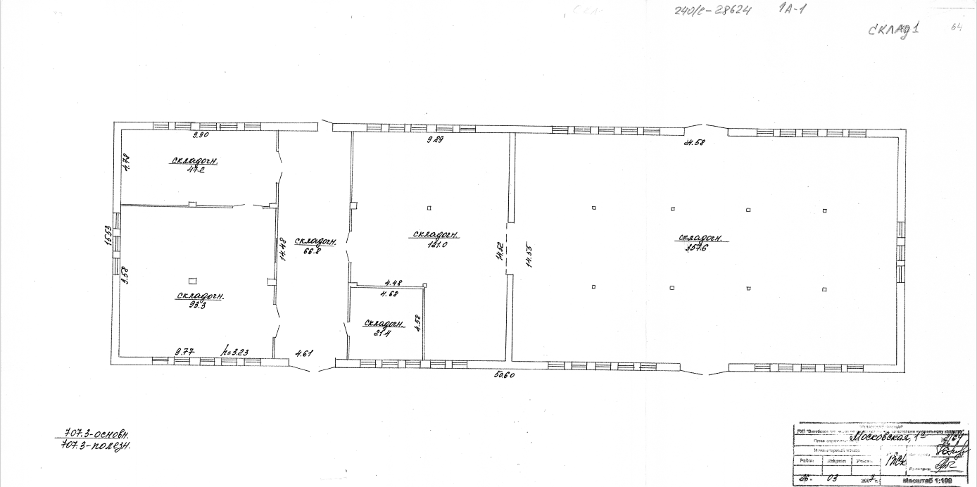
1a1Беларусь  г. Орша, ул. Московская 1А корпус 1

Назначение – склад, производство

Площадь – 707,3кв.м., объем здания – 2695куб.м.                          

Год постройки- 1954       

Описание конструкции:

Фундамент бетонный; полы бетонные, плитка; стены кирпичные; крыша шиферная.

Количество помещений - 6

Количество въездных ворот - 3

Вентиляция - естественная

Освещение – естественное, искусственное (электричество)

Электрическое обеспечение – 380В

 

 

1а1 12023 01 03 14 47 29

Контакты
свяжитесь с нами наиболее удобным способом!

Адрес:

г. Орша, ул. Московская, д. 1А

Для связи:

+375295787874 Viber, WhatsApp
+375295757874 Viber, WhatsApp
+79679889242 Viber, WhatsApp.
depot1.by@gmail.com

Остались вопросы?
Задайте их нам и мы обязательно ответим!


Контакты

depot1.by@gmail.com
+375 29 676 78 74
г. Орша, ул. Московская, д. 1А

Разработка сайта Extrit
© 2022. Использование материалов сайта только с разрешения правообладателя